TWO STOREY SIDE EXTENSION IN TUNBRIDGE WELLS


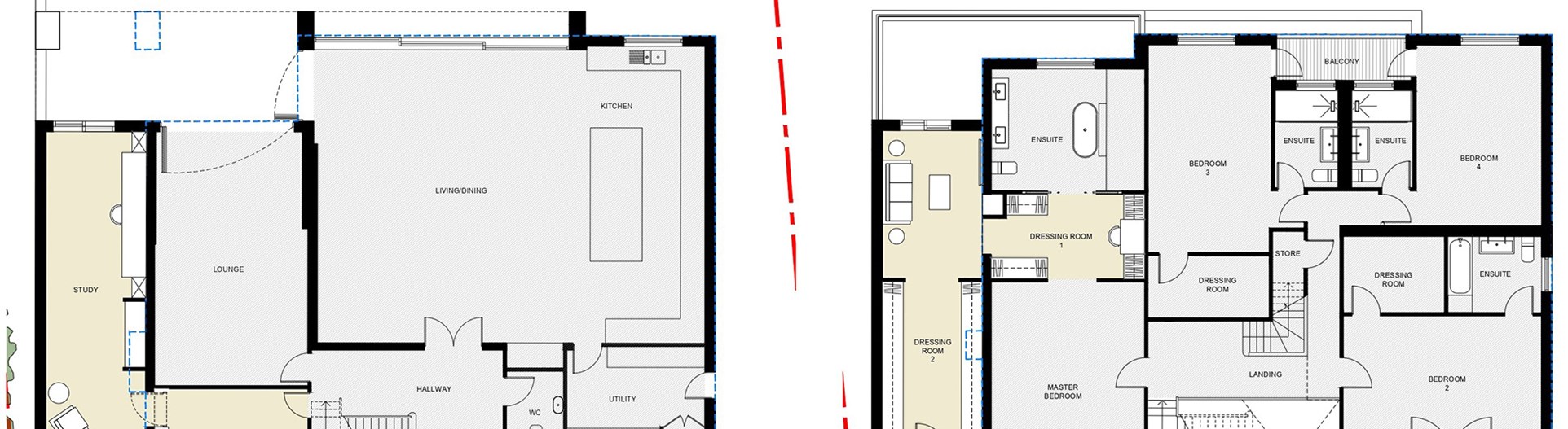
We have received planning approval from Tunbridge Wells Borough Council to design a two storey side extension for a detached property. We are currently in the process of creating an outbuilding, swimming pool and patio area and the owners decided to take this opportunity to extend the main property. The proposed ground floor extension will now have a spacious study accessed through a hidden bookcase in the music room. To enhance the natural light, the study will feature a window overlooking the front of the property, and large sliding doors that open to the rear outdoor spaces. A small seating area is provided as well as a generous desk space with integral shelving as well as a bar unit.

 

The first-floor extension aims to expand the dressing room within the master bedroom. A small seating area is located to the rear of the space with a built in fridge to create a bijou hideaway. Above this space there will be a mezzanine storage area that will be accessed by a ladder. A juliet balcony will introduce natural light from the front of the property and allow views toward the driveway while a glazed door at the rear will provide access to a charming seated area on the balcony and views to the garden. The overall look and feel of the glazing will mirror the existing.

We are inspired by the people we work with